House Units will be constructed for eligible aspirants on a contributory basis; 25 percent of the price will be contributed by KEXWA in respect of each type of unit and the allottees will be required to bear only the remaining 75 percent of the cost which will reckon as the lump sum License Fee for their peaceful and uninterrupted living, availing of the benefits of the institution, at their option, for the rest of their lives.
There are four types of house units, which would be made available to allottees as licensees thereof, alongwith essential items of furniture.
a. Type ‘A’ for family (unit of two/single) of Ex-Officers of all the three Services
b. Type ‘B’ for family (unit of two/single) of Ex0JCOs and their equivalents of all three services .
c. Type ‘C’ for family (unit of two) of Ex-other ranks of all three services
d. Type ‘D’ for an OR living single.
Description of each type of House Unit
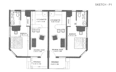
a. ‘A’ Type (Sketch P-1)
i. Plinth Area : 467 Sq Ft (42 Sq Ft)
ii. Components : Drawing, Dining, Bed Room, Bath-cum- toilet, Kitchenette, Sit-out (Details are shown in sketch P1)
iii. Deposit : Rs. 10 lakhs (will be refunded after deducting 10% of the depreciated value every year)
b. ‘B’ Type (Sketch P-2)
i. Plinth Area : 352 Sq Ft (32 Sq Mtr)
ii. Components : Bedroom, Bath-cum-toilet, Kitchenette, sit-out (Details are shown in
Sketch P2) in sketch P1)
iii. Cost to be paid by the Resident excluding 25% of cost to be Borne by KEXWA: Rs.7.5 lakhs/-

Note :These will be allotted to only ex-JCOs and equivalents and their widows.
a. ‘C’ Type (Sketch P-3)
i. Plinth Area : 324 Sq Ft (29 Sq Ft)
ii. Components : Bedroom, Bath-cunm-toilet Kitchenette (Detailed plans is shown in
sketch P3) Sketch P2) in sketch P1)
iii. Cost to be paid by the Resident excluding 25% of cost to be Borne by KEXWA : Rs. 5 lakhs/-

Note :These will be allotted to ex-OR or their widows.
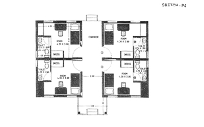
a. ‘D’ Type (Sketch P-4)
i. Plinth Area : 270 Sq ft (25 Sq Mtr)
ii. Components : Bedroom, Bath-cum-toilet Kitchenette
iii. Cost to be paid by the Resident excluding 25% of cost to be Borne by KEXWA
: Rs. 3.5 lakhs/-

Note :These will be allotted to Single ex-OR.